Craft Select - 340CK30563A

Built by Cavco Plant City

Manufactured

Home  →  Floor Plans  →  Craft Select – 340CK30563A

Overview

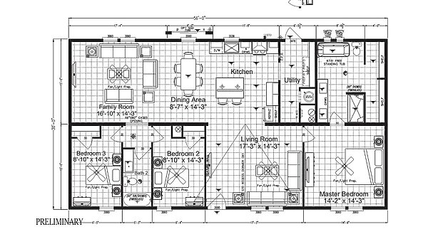
340CK30563A

Share this home
Bedrooms 3
Bathrooms 2.00
Square Feet 1680
Length 56' 0"
Width 30' 0"
Sections 2
Stories 1
Style Ranch

Tours & Videos

Specifications

Additional Specs: 200 Amp Service / LED Lights Per Plan Washer/Dryer Hookups w/ Dust-Free Wire Shelf in Utility Room / Exterior Receptacle / 30 Gal. Water Heater w/ Pan / Whole House Water Shut-Off Valve / Kitchen Island w/ Canopy Style Pendant Lights / In-Ceiling Return Air / Wire/Brace/Switch for Ceiling Fans in Living Room & All Bedrooms
Home Warranty Info: 1 Year Coverage Plan Included / Optional On-Site Home Completion & Customer Care Inspection
Cabinetry & Counters: Shaker Style Cabinet Doors / Black Hardware All Cabinets / ¾” Cabinet Styles / 42” Overhead Cabinets in Kitchen To Ceiling w/ Two Adjustable Shelves
Interior Specs: Residential DuraCoat Ceiling / Drywall Throughout with Painted Battens / Premium Interior Latex Paint / Luxury Linoleum Floors Throughout / Paneled Interior Doors w/ Mortised Hinges / Vented Dust-Free Closet Shelving / Accent Feature Wall w/ Signature Board/Bath / Flat Baseboard, Cove, Door and Window Trim Throughout Including Closets & Pantries
Exterior Specs: Wind Zone II Construction / 6” Centerline Walls with CFC Centerline Seal / 2" x 8" Floor Joists 24” on Center / 2" x 6" Exterior Walls 24” Center / 3/4" Tongue & Groove OSB Floors - Nailed / ThermoPly Structural Sheathing Wrap / Ring Shank Nailed Roof Decking / 25-Yr. Algae Resistant Shingles–Nailed / Weatherwatch Waterproof Leak Barrier at Eaves & Valleys / Cobra Ridge Venting System / 8’ Flat Ceiling Throughout / Energy Star Certified w/ R-38 Roof; R-13 Wall; R-22 Floor / Insulation Included as Special Promotion / Sealed Air Distribution System & Return Air / Mighty Man Door & Window Construction / Vinyl Lap Siding – Double 4 Profile – Nailed w/White Corners / Vinyl Door & Window Trim – Street Side Only / Low E, Insulated Glass Vinyl Windows / 36” Fiberglas Inswing Front Door w/ 6-Lite Window & Black Lever Handle / Deadbolt Lock / Outswing Cottage Rear Door w/ Black Lever Handle / Pex Water Lines System / Shut Off Valves Sinks & Toilets / Recessed Dormer Over Front Door w/ Vertical Vinyl Accent - Doublewides only
Kitchen Specs: Stainless Steel Coil Burner Electric Stove / Stainless Steel 18 Cu. Ft. Refrigerator w/ Icemaker / Stainless Steel Dishwasher / Chimney Range Hood / Single Bowl 8” Stainless Steel Sink / Brushed Nickle Gooseneck Faucet / Single Row of Ceramic Tile Backsplash / Bank of Drawers / Shelf Over Refrigerator
Bathroom Specs: Dual Lever Black Faucets in Both Baths / Single Lever Black Faucet on Showers & Tub/Showers / Framed Mirror Treatment Both Baths / 60” Fiberglass Shower in Master Bath / Fiberglass Tub/Shower in Guest Bath / Elongated Toilets in Both Baths / Single Row Ceramic Tile Backsplash at Sinks / Free-Standing Soaker Tub w/ (2) 14” x 42” Fixed Windows in Master Bath / Dual Sink Vanity w/ Cubby Storage in Master Bath
Please Note:

All sizes and dimensions are nominal or based on approximate manufacturer measurements. 3D Tours and photos may include retailer and/or factory installed options. The manufacturer and/or retailer reserves the right to make changes due to any changes in material, color, specifications, and features at any time without notice or obligation.

This Home is Offered By

Cavco Plant City - Plant City, FL
Proudly Built By

Cavco Plant City

605 S Frontage Rd, Plant City, FL 33563
¿Hablas español?